Riverbend

6 BED CORNER DUPLEX! $1.25m - High Rental! For Sale

LIVE IN OR RENT OUT! $1,250,000 DUPLEX PKG

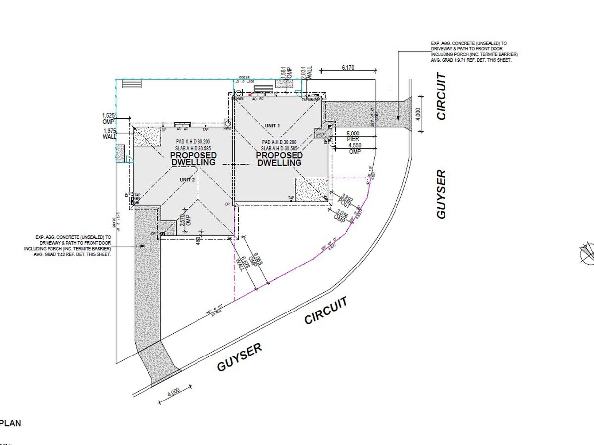
**BUILD NEW - LAST 6 BEDROOM CORNER DUPLEX AVAILABLE – ACT FAST - REGISTRATION IMMINENT! • STRONG RENTAL APPRAISAL ** LIVE IN ONE & RENT OUT THE OTHER • RENT BOTH FOR HIGH RETURNS • IDEAL FOR LARGE OR MULTI-GEN FAMILIES • INVESTOR READY (NOT suitable for SMSF). Large 739sqm corner block - North Facing!

Land Registration: Late April/Early May 2026. Eligible Buyers: Pre-Finance-Approved or Cash Buyers Only.

Unlock exceptional value with this rare six bedroom corner duplex package—perfect for owner-occupiers wanting flexibility or investors seeking strong dual-income potential. Build will commence after land settlement.

DUPLEX CONFIGURATION – CORNER BLOCK - TO BE BUILT:

UNIT 1 - 3 Bedrooms | 2 Bathrooms | Open-plan Living & Dining | Large Kitchen with excellent storage | Under-cover Alfresco | 1-Car Garage | 2 x Split-System A/C units

UNIT 2 - 3 Bedrooms | 2 Bathrooms | Open-plan Living & Dining | Kitchen with excellent storage | Under-cover Alfresco | 1-Car Garage | 2 x Split-System A/C units

WHY BUY THIS PACKAGE?

Strong rental appraisal for dual-income setup, Future subdivison available AFTER construction. Live in one unit and rent the other, or maximise yield by renting both, Ideal for large families, multi-generational living, or investors; Corner 739sqm block.

Build process fully guided by House and Land Solutions – 16+ years’ experience.

NEXT STEPS

✔ Contact Micki Holder – 0412 955 006 for the full information package
✔ Discuss land purchase terms
✔ Book a walkthrough of a similar completed dual-key home
✔ We hold your hand throughout the ENTIRE process to handover and can assist with property managment
✔ View more listings at houseandlandsolutions.net

Note: Images shown are from a completed home by the builder and may include upgrade items not in the standard package. Full specifications available on request.

square: 739 Square metres
Bedrooms: 6
Bathrooms: 4
Garages: 2

property information

main information
  • Property ID: 1763065
  • Bedrooms: 6
  • Price: 6 BED CORNER DUPLEX! $1.25m - High Rental!
  • Bathrooms: 4
  • Square: 739 Square metres
  • Garage: 2
Additional Features
  • Air Conditioning
  • Reverse Cycle Air Conditioning
  • Split-System Air Conditioning
  • Split-System Heating
  • Fully Fenced
  • Outdoor Entertainment Area
  • Remote Garage
  • Secure Parking
  • Broadband Internet Available
  • Built-in Wardrobes
  • Dishwasher

See the video TOUR

Do you like this offer? Contact me to get more
information!

contact me

I am here to help with all your real estate needs and questions. Let me know what's on your mind and start a conversation.

mobile
Social