Woodgate

5 Bedroom Home! $845K Pkg For Sale

LIVE IN OR INVESTOR! $845K LUX PKG

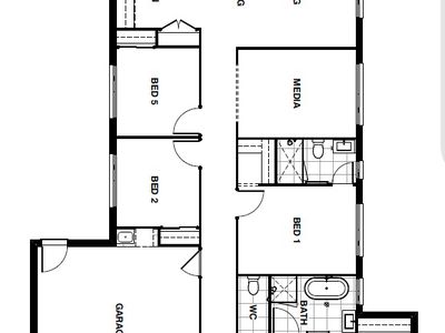
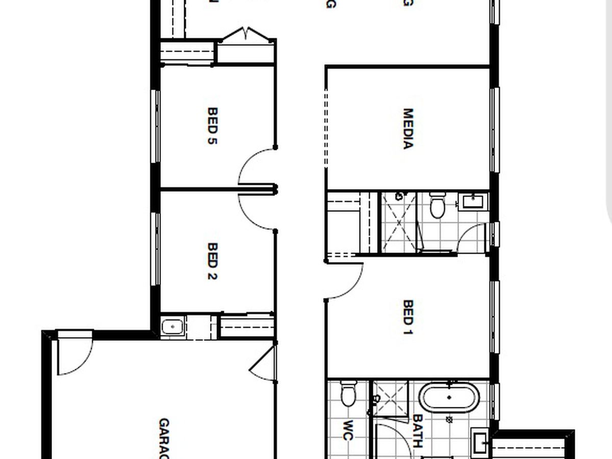
BUILD NEW - HUGE 5 BEDROOM HOUSE + MEDIA ROOM (WOW!) LIVE IN OR RENT OUT! DRIFT ESTATE - June 2026 Registration!! THIS PACKAGE HAS IT ALL. Lock in your block TODAY and build in 2026! UNDER 26 WEEK BUILD TIME! SUITABLE FOR FHB - OWNER OCCUPIER OR INVESTOR! - Contact Micki Holder on 0412 955 006 for information pack.

Configuration: Generous 5 Bedrooms | Huge open plan Living/Dining area| Large Kitchen with loads of storage |Separate Media/Rumpus|Internal laundry | 2 Garage Turn Key & Fixed Price Package!! Contact agent for land purchase requirements.

Full information package available on request, Contact Micki Holder the full marketing kit. Better still, organise an appointment to walk through a similar completed home!

House and Land Solutions looks after our clients throughout the entire build process. We are celebrating over 16 years of experience building quality homes for our clients. We are with you every step of the way. Give us a call to find out how we can help you! Contact Micki Holder on 0412 955 006 TODAY.

Check out our new listings on https://www.houseandlandsolutions.net

NOTE: images used are of the one of the builder's completed homes showing the quality of the finishes. There may be some items within the images not included in the standard specifications. Full marketing packages available upon request.

square: 958 Square metres
Bedrooms: 5
Bathrooms: 2
Garages: 2

property information

main information
  • Property ID: 1738087
  • Bedrooms: 5
  • Price: 5 Bedroom Home! $845K Pkg
  • Bathrooms: 2
  • Square: 958 Square metres
  • Garage: 2
Additional Features
  • Air Conditioning
  • Reverse Cycle Air Conditioning
  • Split-System Air Conditioning
  • Split-System Heating
  • Fully Fenced
  • Outdoor Entertainment Area
  • Remote Garage
  • Secure Parking
  • Broadband Internet Available
  • Built-in Wardrobes
  • Dishwasher
  • Rumpus Room

See the video TOUR

Do you like this offer? Contact me to get more
information!

contact me

I am here to help with all your real estate needs and questions. Let me know what's on your mind and start a conversation.

mobile
Social